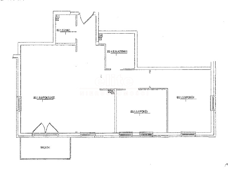
Lokal znajduje się na wysokim parterze i posiada 73,90 m2 na co składają się:
- duży salon z aneksem kuchennym 37m2 i wyjściem na balkon
- sypialnia 14,10m2
- pokój 10,10m2 (nieumeblowany)
- łazienka 5m2
- pomieszczenie gospodarcze z pralko-suszarką 2,6m2
W mieszkaniu mamy dwie bardzo duże i pojemne zabudowane szafy do sufitu (jedna w sypialni a druga na korytarzu). W salonie nowa zabudowa Besta prawie po sufit zapewniająca bardzo dużo miejsca jak i miejsce pod telewizor. Nowoczesna kuchnia z dużą ilością szafek oraz sprzętem AGD (zmywarka, lodówka, płyta indukcyjna). W salonie zamontowana klimatyzacja Daikin (pompa ciepła - można również nią grzać). W całym mieszkaniu rolety zewnętrzne elektrycznie sterowane z pilota. W pomieszczeniu gospodarczym praktycznie nowa pralko-suszarka Electrolux i dodatkowe półki i regał.
Do mieszkania przynależy 1 stanowisko parkingowe w garażu pod budynkiem z zamontowaną już ładowarką do aut elektrycznych i stanowisko jest jest za jedyne 300zł/miesiąc. (istnieje opcja wynajęcia drugiego stanowiska za dopłatą). Na terenie osiedla miejsca dostępne również dla mieszkańców za bramą (na zasadzie kto pierwszy zaparkuje)
Najemca pokrywa dodatkowo : Koszty czynszu administracyjnego (783,46 z ogrzewaniem ale bez wody (doliczana zaliczka w zależności od ilości osób), prąd i Internet.
Kaucja 7000zł. Umowa na min rok.
Zapraszamy i polecamy
Każdy zainteresowany zakupem nieruchomości z naszego biura nieruchomości ma gwarantowaną obsługę w zakresie uzyskania kredytu (bez prowizji od kupującego i dodatkowych kosztów związanych z załatwieniem kredytu). Współpracując z sprawdzonym brokerem kredytowym na rynku polskim możemy sprawdzić dla Państwa zdolność kredytową w ponad 20 bankach. O szczegóły proszę pytać agenta odpowiedzialnego za to ogłoszenie.
Kupujemy nieruchomości za gotówkę, również zadłużone: mieszkania, domy, działki - płacimy natychmiast!
Powyższe ogłoszenie ma wyłącznie charakter informacyjny. Nie stanowi ono oferty w myśl art. 66 i n. ustawy z dnia 23.04.1964r. Kodeks cywilny (Dz.U. 1964r. Nr 16, poz. 93, ze zm.).
Chcesz otrzymywać podobne oferty?
Skorzystaj z automatycznych powiadomień e-mail o nowych ogłoszeniach w wybranych kryteriach wyszukiwania














